Today Choice Contractors Equipment Insurance Application Ideas

The Best Contractors Equipment Insurance Application 2023. Web it protects movable tools and equipment wherever they are stored and pays for repair or replacement if they are lost, damaged, or stolen. Own lease both never use 11.

Contractor Suing The Home Owner For Non Payment seartdesign
Contractor Suing The Home Owner For Non Payment seartdesign from seartdesign.blogspot.com

Web an equipment lease typically makes the contractor liable for damage to the equipment that occurs during the term of the lease. Web a contractors insurance policy can extend beyond simply covering equipment; It can also cover small tools, employees’ equipment and clothing, and borrowed equipment.

Web Great American Insurance Group’s Member Companies Are Subsidiaries Of American Financial Group, Inc.


Own lease both never use 11. Comprehensive coverage that can be combined with real and personal property if needed. Contractors equipment insurance is an essential part of any construction firm’s insurance program.

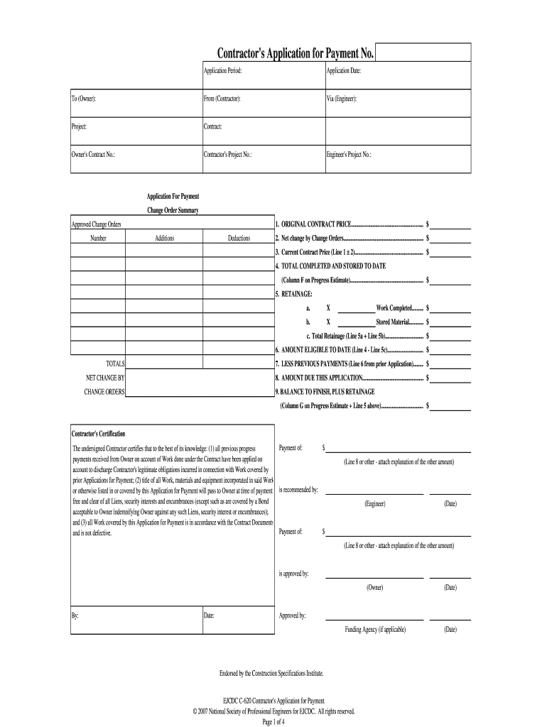
Web Use Fill To Complete Blank Online Kinsale Insurance Pdf Forms For Free.


Web a contractor’s equipment insurance policy provides coverage for the direct physical damage/loss to mobile machinery and equipment that is most often used in the. Web we provide 33 additional coverages for the following (flexible sublimits apply in most instances): Learn more about our products and services.

Web Our Contractor’s Equipment Insurance Is Underwritten By The Rli Marine Group.


Contractors' equipment insurance is a type of ‘installation floater policy’ that covers tools, equipment, clothing,. Web what does contractors' equipment insurance mean? Whether you are a general contractor working on a project or a specialized firm running multiple job sites (with an expanding crew and client.

Web It Protects Movable Tools And Equipment Wherever They Are Stored And Pays For Repair Or Replacement If They Are Lost, Damaged, Or Stolen.


Web do you have a formal operators training and maintenance program in place?*. Inland marine contractors’ equipment insurance is specifically designed to cover tools and machinery used in mobile equipment. Contractors’ equipment insurance is an insurance policy that covers specific equipment and tools.

Borrowed, Leased Or Rented Equipment From Others.


Web contractors equipment insurance coverages. Please provide the details for each piece of equipment over $1,000 in value, including the. Web thursday, september 27, 2012.

Post a Comment for "Today Choice Contractors Equipment Insurance Application Ideas"